TOKAJ A borvidék építészete

EN
  • Kezdőlap
  • Épületek
  • Települések
  • Táj
  • Írások

Törökfejes kúria és borászat

Új épület Tarcal
001

Építész: Terdik Bálint, Salamin Ferenc

Építész munkatárs: Mike Diána, Salamin Miklós, Salamin Pál

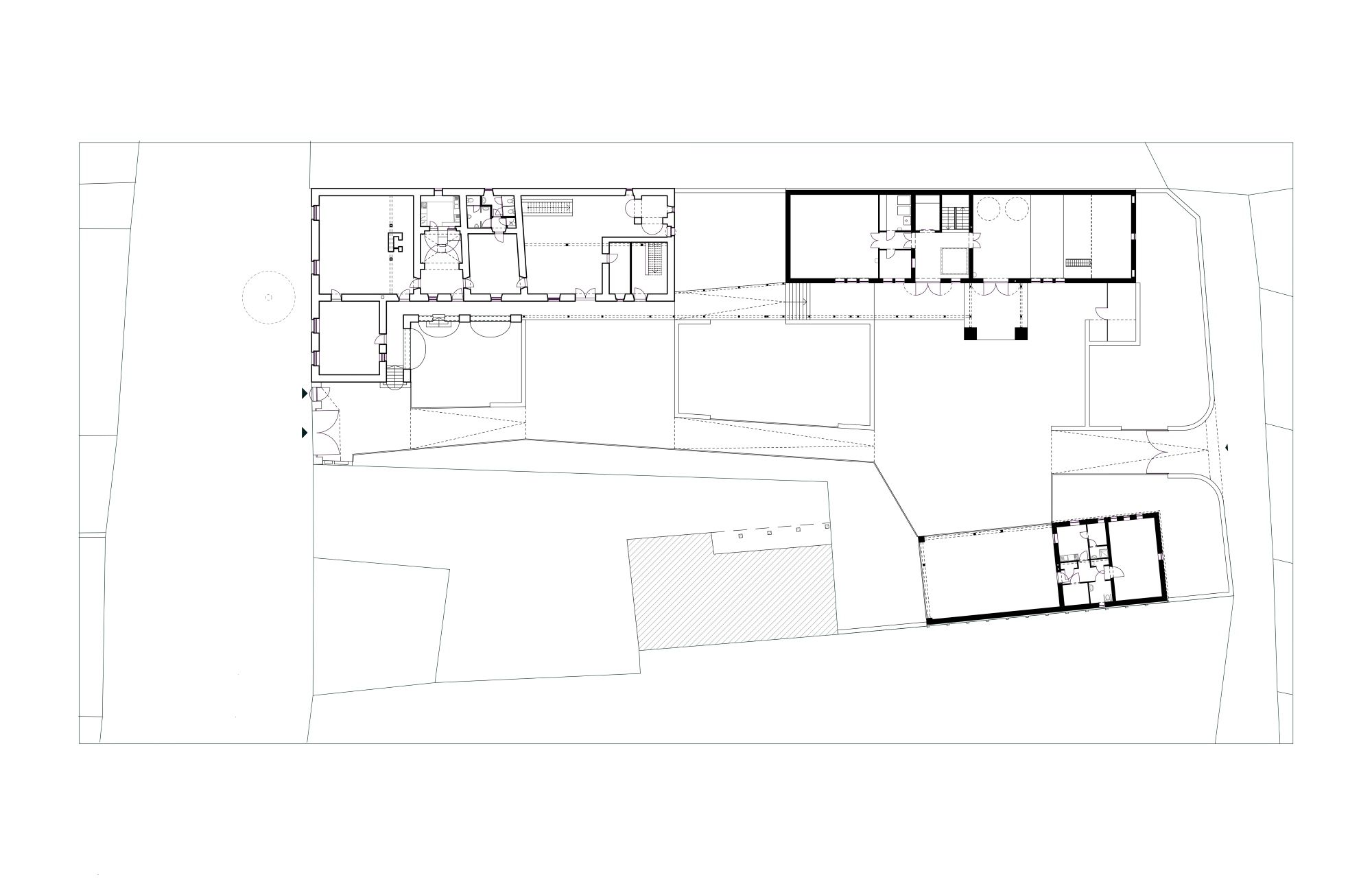
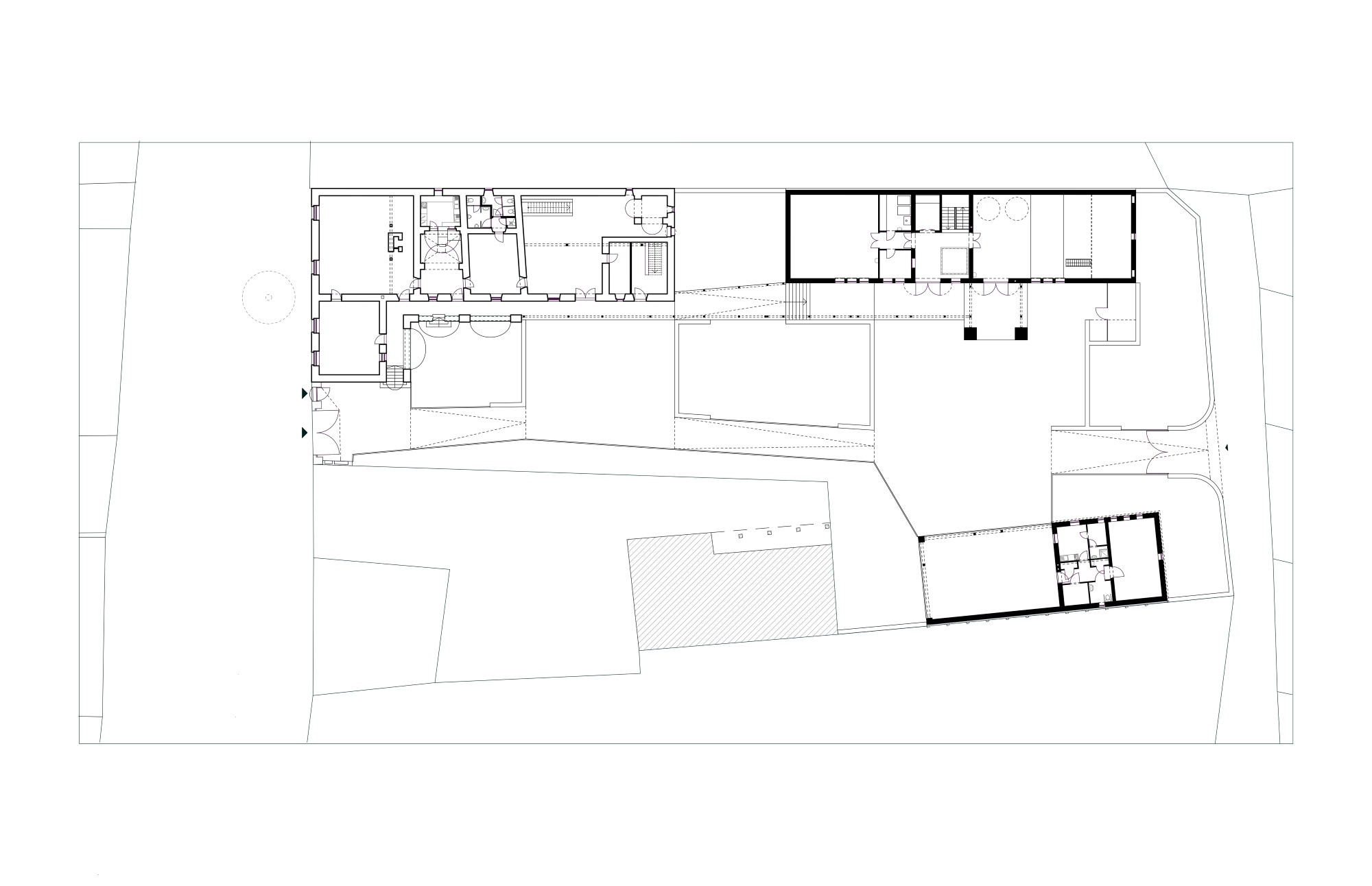
A telken korábban egy értékes, de alaposan átalakított és lepusztult egykori kúriaépület állt. A terület két irányból, a Fő utca és a Könyves Kálmán utca felől is megközelíthető, és jelentősen lejt a főút felé. A kúria felújítása az eredeti nyílások visszaállítását, faragott tufakő ablakkeretek beépítését, és a belső megújítását is jelentette. Az átalakítás után a földszinten borbemutató terem és irodák kaptak helyet, a tetőtérben pedig vendégszobák. A régi épület az egykori rangosságot sugárzó, elegáns kúria jelleget kapta vissza sok évtized elhanyagoltsága után.

Az új épületek nem konkurálnak a régi kúriával, a helyi beépítési hagyományokat követik mind a tömegarányoknál, mind a telken való elhelyezésüknél. A borászat a meglévő kúria mögött, a felső utca felől helyezkedik el, a kocsiszín pedig ezzel szemben. Így egy gazdasági udvar is kialakult, ami lehetővé teszi a felső, külön bejárat létrejöttét. Az új épületrészek formálásánál a település képét is uraló tömbszerű, vakolt épülettömegek a jellemzők, illetve a helyi tufa terméskő az épületek kiemelt helyein. 

002
003
004
008
006
007

BOR-VIDÉK TOKAJ-HEGYALJA TÁRSASÁG

info@tokajepiteszet.hu

Minden jog fenntartva © 2026

impresszum

Magyar Művészeti Akadémia

A honlap a Magyar Művészeti Akadémia támogatásával valósult meg.