TOKAJ A borvidék építészete

EN
  • Kezdőlap
  • Épületek
  • Települések
  • Táj
  • Írások

Pelle Pezsgőpincészet

Új épület Mád
001

Építész: Erhardt Gábor

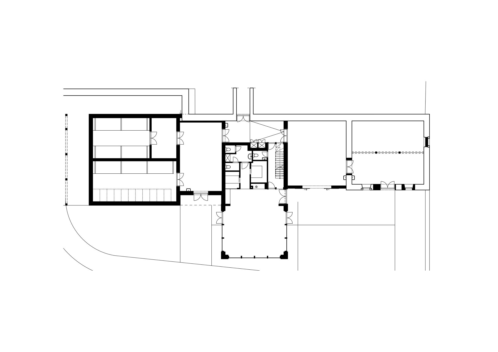
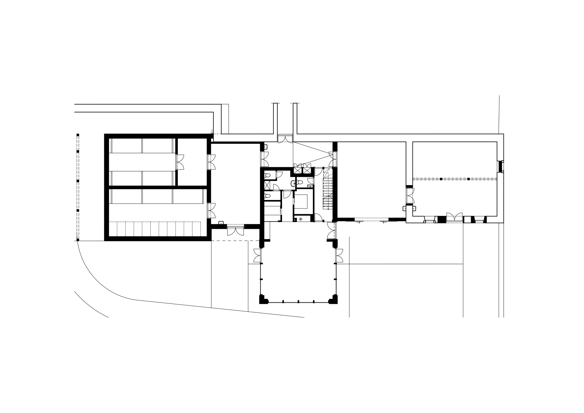
A telek szinte pontosan Mád geometriai középpontjában fekszik, a településközpontból induló szélesebb közből érhető el. A főutcával párhuzamos egykori gazdasági épület feltehetően az egyik legfontosabb középülethez, a Kék Szőlő szállóhoz (ma Grossmann-ház) tartozhatott. Talán itt sorakoztak az egykori szállóvendégek kocsijai, lovai.

A felújítás idejére – talán bontás, talán egy tűzvész pusztítása miatt – már csak az utcához legközelebb eső helyiség maradt meg az eredeti épületből, illetve a hátsó oldalhatáron álló támfala, amelyből a ház eredeti hosszára lehetett következtetni. A támfal mögött indul a telek legértékesebb eleme: egy hatalmas, többszintes pincerendszer.

Az új épületbe beépültek a megtartható épületrészek: a pince, a támfal és az utcai helyiség (borérlelő tér). Az eredeti állapotot megidéző, korszerű szerkezetekkel épült főtömegbe kerültek a bor- és pezsgőkészítéshez szükséges helyiségek. Ezt egészíti ki az új, súlyponti keresztszárny a nagy belmagasságú kóstolótérrel, amelyhez a galériaszinten iroda és tárgyaló is kapcsolódik.

002
003
004
005
006
007
008

BOR-VIDÉK TOKAJ-HEGYALJA TÁRSASÁG

info@tokajepiteszet.hu

Minden jog fenntartva © 2026

impresszum

Magyar Művészeti Akadémia

A honlap a Magyar Művészeti Akadémia támogatásával valósult meg.