TOKAJ A borvidék építészete

EN
  • Kezdőlap
  • Épületek
  • Települések
  • Táj
  • Írások

LAKÓHÁZ

Régi épületek Rátka
Utcai homlokzat

építés: feltehetően XVIII. század

helyszín: Rátka

fotók: Fábián Rigó Tamás, Salamin Ferenc

Mára sajnos elbontották az épületet, pedig a sváb település egyik legrangosabb és legszebb háza volt, amely kitüntetett, településközponti helyen állt, egy szokatlanul nagy telken.

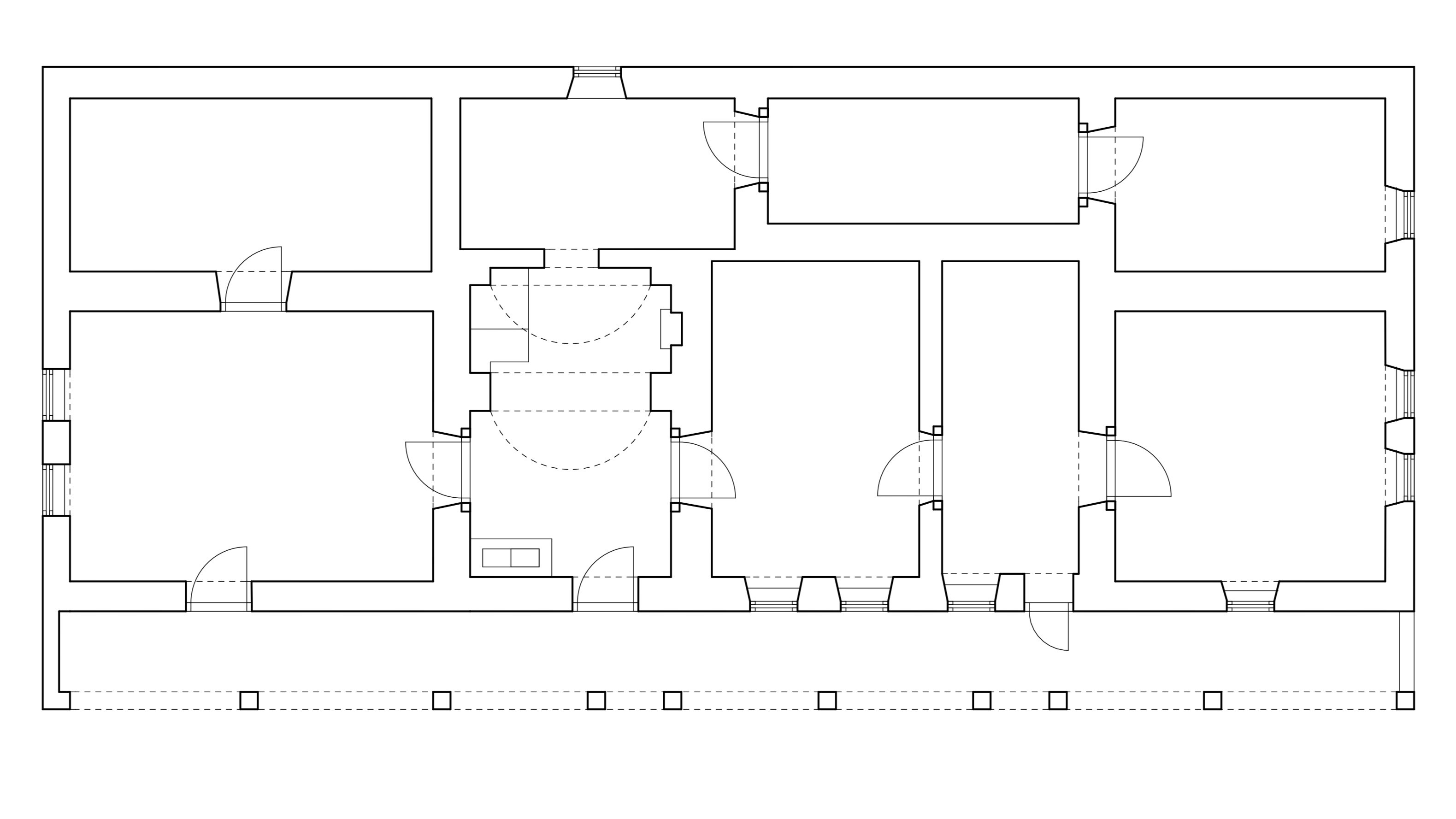
A kétmenetes alaprajzú lakóépület belső hosszfala a teljes épülethosszon végigfut, ám nem egyvonalban, hanem igen sok ugrással, ami a több ütemben történő építést sejteti. Az északi helyiségek a keskenyebbek, ami ritkaság. Ez feltehetően azt jelenti, hogy a szomszéd felé bővítették az egykori klasszikus, egytraktusos épületet, vagy eleve kétmenetesként épült. Az udvar felőli helyiségek azonban igen tekintélyes méretűek, helyenként hat méter szélesek. Az utcai homlokzaton három ablaka van a háznak: egy az északi, keskenyebb szobán, kettő pedig a déli szélesebben.

Az épület valójában két lakást tartalmazhatott, ugyanis két konyha van benne. Az alaprajzi képlet így a következő: tisztaszoba, konyha, közös szoba, konyha, hátsó kamra (lakószoba). Ez nem példa nélküli sem a borvidéken, sem általánosságban a Kárpát-medencében, ugyanakkor a ház rangot, meglehetős jómódot sugárzó megjelenésével némiképpen ellentmondásban van a kétlakásos kialakítás. Az érdekességek azonban itt még nem érnek véget: a hátsó konyha a kétmenetes kialakítás miatt nem a hátsó falhoz tapad, hanem középen található, és egy kamra helyiség van mögötte. Szabadkéményét impozáns páros boltív tartja.

Szintén rendhagyó módon a pincelejáró a hátsó konyha pitvarából indul, de nem az épület alá, hanem az udvar alatt lévő pincéhez.

Kerítés részlet, háttérben a ház
Tetőszerkezet
Tetőszerkezet
Tetőszerkezet
Alaprajz
Tornác
Istálló belsőtér
Istálló homlokzat
Utcai homlokzat
Utcai ablak
Padlás kéménnyel
Pitvar és konyha
Tűzpadka a konyhában
Falfestés a hátsó szobában

BOR-VIDÉK TOKAJ-HEGYALJA TÁRSASÁG

info@tokajepiteszet.hu

Minden jog fenntartva © 2026

impresszum

Magyar Művészeti Akadémia

A honlap a Magyar Művészeti Akadémia támogatásával valósult meg.