TOKAJ A borvidék építészete

EN
  • Kezdőlap
  • Épületek
  • Települések
  • Táj
  • Írások

Grossmann-ház

Felújítások Mád
001

Építész: Kuli László

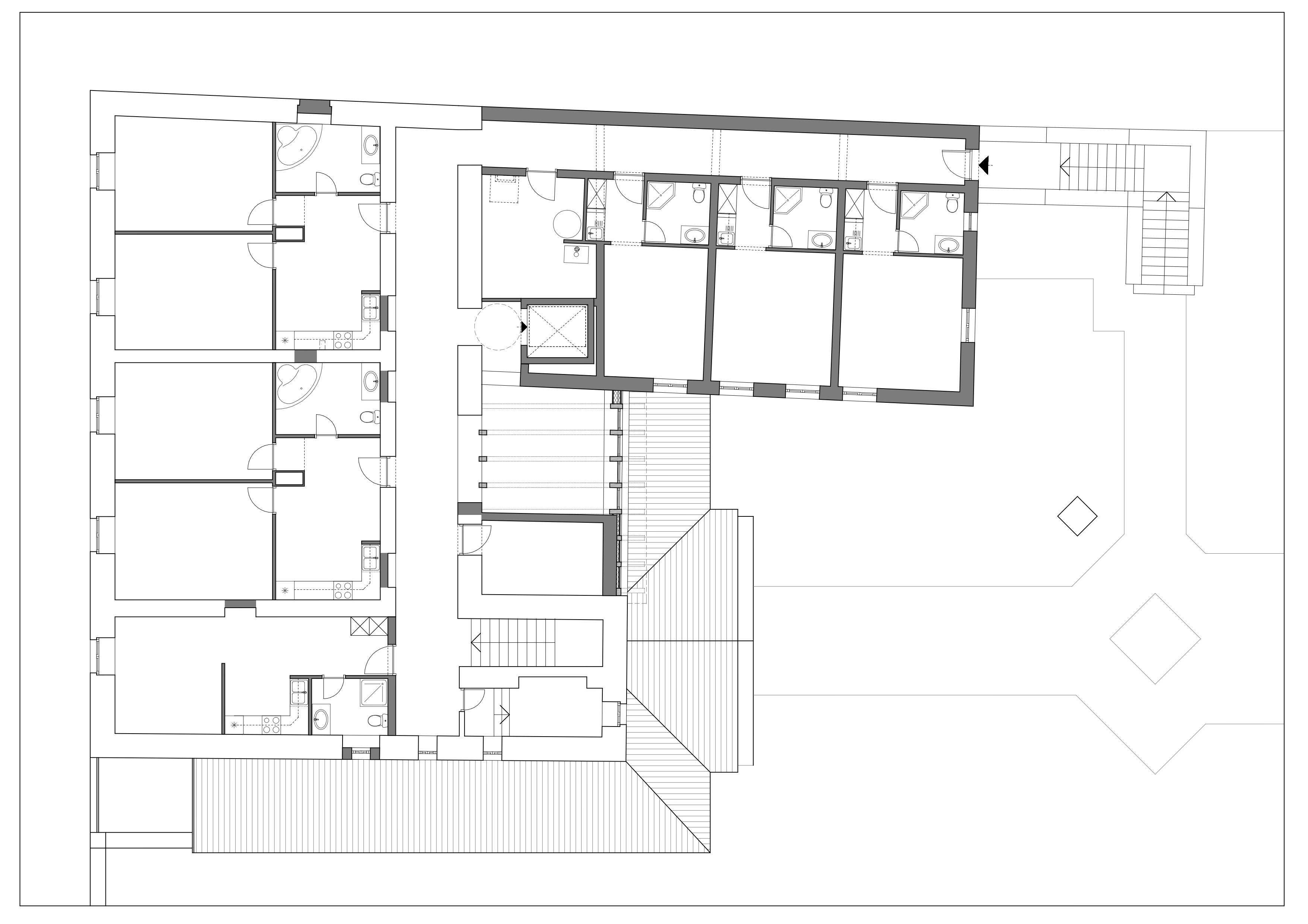
A Grossmann borkereskedő család háza a XIX. század végén épült. A kétszintes, részben alápincézett, eklektikus épület eredetileg U-alakú beépítést mutatott, de az évek során sokat bontottak belőle, és szolgálati lakásokat alakítottak ki benne. 2016-ban egyetemi vendégházzá alakították át, amely funkcionálisan kiegészíti a Borsay-kastélyban megvalósult egyetemi oktatási intézményt. Az épület gyalogos bejárata megmaradt a Rákóczi utca felől, az udvar felső részére kerültek a mellékutcából megközelíthető parkolók. Az udvari szárny emeletét visszaépítették, így összesen tizennégy szobát lehetett kialakítani a házban. A pincében reggelizőhelyet alakítottak ki, mely alkalmas kisebb megbeszélések, klubrendezvények lebonyolítására is.

002
003
004
006
005
007
008
010
009

BOR-VIDÉK TOKAJ-HEGYALJA TÁRSASÁG

info@tokajepiteszet.hu

Minden jog fenntartva © 2026

impresszum

Magyar Művészeti Akadémia

A honlap a Magyar Művészeti Akadémia támogatásával valósult meg.