TOKAJ The architecture of a vine region

HU
  • Home
  • Buildings
  • Settlements
  • Land
  • Writings

Rákóczi House

Renovations Bodrogkeresztúr
Utca felőli nézet

completion: 17th century

location: Bodrogkeresztúr

photos: Tamás Szántó

History of the Building

Little is known about the Rákóczi House, one of the village’s most renowned buildings: “The manor house overlooking the main street was built in the 17th century in the early Baroque style. It underwent reconstruction during the 18th century,” goes the brief official description.

In the old days it was customary to link every prestigious manor to the historic Rákóczi family but whether this house was theirs or not has not yet been confirmed.

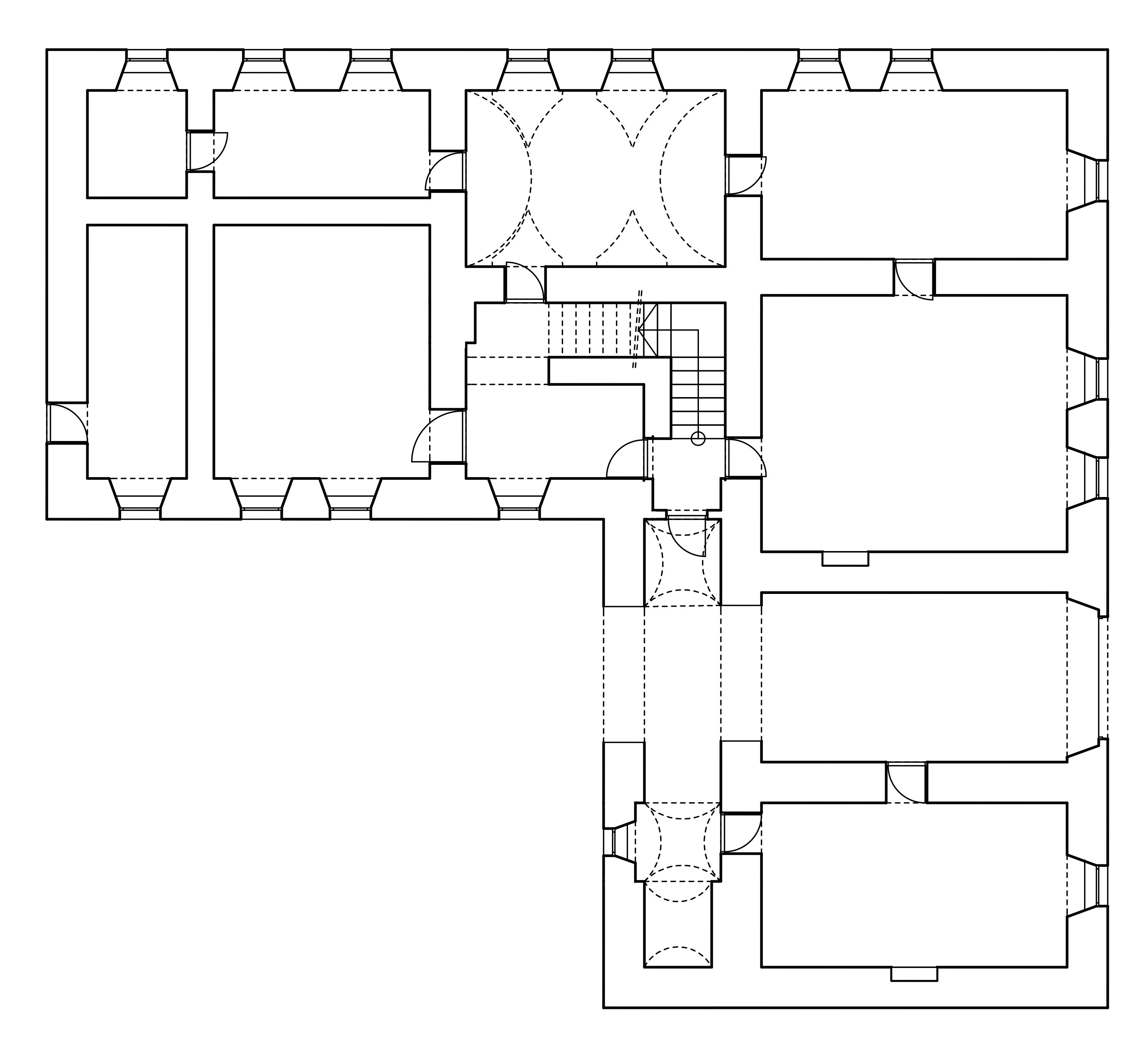
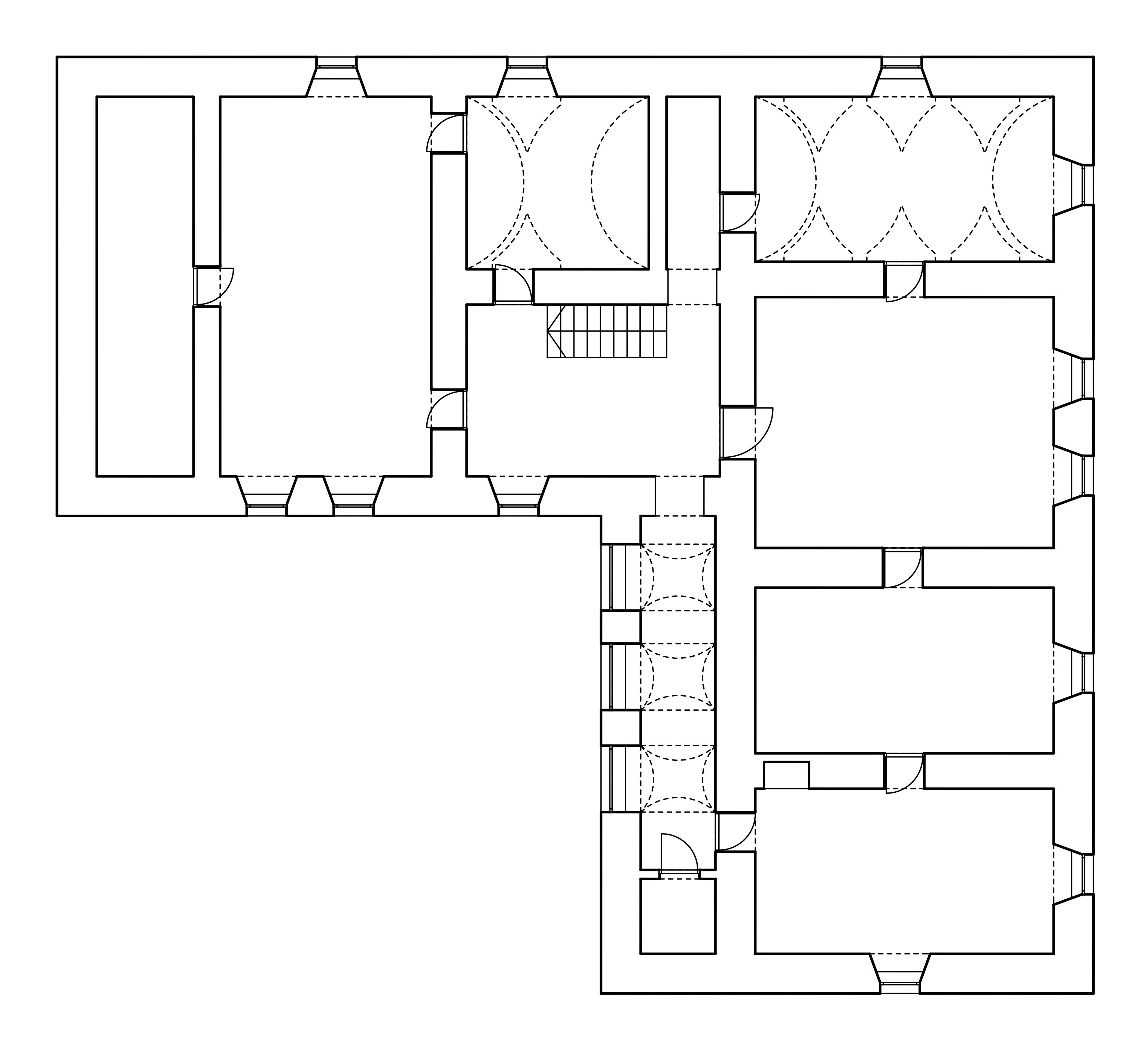
The two-storey building with a passage was built with a classical L-shaped ground plan and its four adjacent rooms on the upper level are overlooking the street, which was undoubtedly regarded as a prestigious solution in the Baroque era in this part of the country. Judging from the excessive plaster decoration and moulding on the main facade on the street front, the building does not come across as an aristocratic home reflecting refined taste.


Utca felőli nézet
Utca felőli nézet
Földszinti alaprajz
Emeleti alaprajz
Udvar felőli homlokzat
Kapu az utca felől
Kapu boltív részlete
Földszinti ablak
Emeleti ablak
012

BOR-VIDÉK TOKAJ-HEGYALJA TÁRSASÁG

info@tokajepiteszet.hu

All rights reserved © 2026

Impressum

Magyar Művészeti Akadémia

The website is supported by the Hungarian Academy of Arts.