TOKAJ A borvidék építészete

EN
  • Kezdőlap
  • Épületek
  • Települések
  • Táj
  • Írások

RÉGI VAY-KASTÉLY

Felújítások Golop
 Tom1809convertx2 2

feújítás éve: 2012

építész: Salamin Ferenc

építész társtervező: Erhardt Gábor

kerttervező:  Vincze Attila

kőfaragó: Kolyankovszky István

Építéstörténet

Az épület az 1500-as évek végén épült, többé-kevésbé ismert nyílásrenddel és ismeretlen tetőformával. Az épületben az első építési periódusban fa gerendás födém volt, a saroképületrészeket fiókos dongaboltozat fedte. Az első átalakítás még a reneszánsz kor legvégén történt, boltozatot készítettek a földszinti nagyteremben, illetve a pincében is. Később is több átalakítás történt, pl. a XVII. század első felében.

A következő fontos periódus az 1700-as évek első felére tehető. Ekkor alakították át a kőkeretes ablakokat nagyobb méretű pallótokos ablakokra, és a belső nyílásrendszert: a kőkeretes reneszánsz ajtók helyett fillungos ácstokos ajtók készültek. Ekkor épült az ún. „magtár”-bővítmény az épület keleti oldalához tapasztva, és ekkor készült a középső földszinti helyiség felosztása.

Az 1980-as években elbontották a magtárbővítményt, illetve a bejárati építményt, lecserélték a tetőt és a felső fa mennyezetet vasbeton gerendás födémre. Az ezután eltelt idő a folyamatos romlást és az értékes faragott kőanyagok nagy részének eltűnését hozta. Az épület a felújítás előtt kiegészítő szerkezeteitől megfosztva, csupán falakból, födémekből és tetőből állt.

Dsc02717ff
052 851pd
 Mg 7681
 Mg 7683

Felújítás

Az új tulajdonos igénye az volt, hogy az eredeti rendeltetésnek megfelelően egy magas színvonalú lakó-kastély készüljön. Az épületnek két jelentős építési periódusa volt, az 1490 körül épült reneszánsz várkastély, és az 1700-as évek átalakításai, de a belső térkapcsolatok jelentősen nem változtak meg. Ahol lehetett a felújítás a reneszánsz jelleget erősíti, annak hiányában pedig a későbbi korokból, pl. a barokkból megmaradt elemeket, és a további érdekes részleteket mutat be.

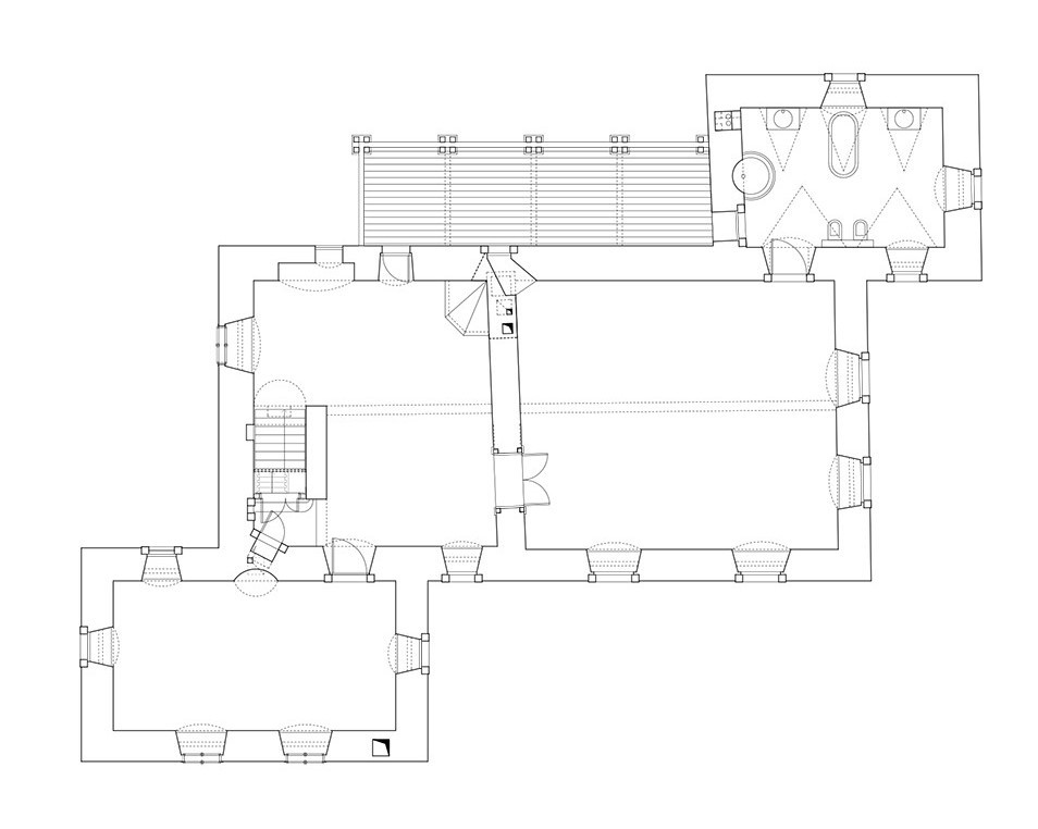
Mivel az épület tömege az eredeti reneszánsz korszakot őrzi, ezért a tetőforma reneszánsz jellegű lett. A homlokzatoknál az egykori, kutatással megismert reneszánsz részleteket állították helyre, másutt a barokk elemek láthatók, Az 1980-as években elbontott korábbi toldalék épületrészeket eltérő formavilággal, faszerkezettel építették vissza.

Az épület alaprajzában nem történtek jelentős változások, a két saroktoronyba fürdők, illetve hálók kerültek, és új elemként a két alsó szintet belső lépcsővel kötötték össze. A középső épületrész nappali szobaként működik, a földszinten a barokk boltozott konyhát visszaépült eredeti helyére. Mindkét régi bejárat megmaradt, mely elé egy fa anyagú fedett belépő került, felvezető falépcsővel. A keleti oldal egykori barokk magtárát ugyancsak ácsolt fa szerkezetből, teraszként építették vissza.

Pince
Fsz
Em
 Tom1822convertx2 2
 Tom2070convertx2 2
 Mg 7690
 Mg 7688
 Tom1843convertx2 2
 Tom1840convertx2 2
 Tom2073convertx2 2
 Tom2104convertx2 2
 Tom2111convertx2 2

BOR-VIDÉK TOKAJ-HEGYALJA TÁRSASÁG

info@tokajepiteszet.hu

Minden jog fenntartva © 2026

impresszum

Magyar Művészeti Akadémia

A honlap a Magyar Művészeti Akadémia támogatásával valósult meg.