TOKAJ A borvidék építészete

EN
  • Kezdőlap
  • Épületek
  • Települések
  • Táj
  • Írások

Rákóczi-Aspremont kúria

Felújítások Mád
001

Építész: Erhardt Gábor

Belsőépítész: Bálint Ágnes, Igaz Rita

Festőrestaurátor: Nemessányi Klára és Boromissza Péter

Farestaurátor: Fabók Balázs

Kályhák: Szebényi Judit

A település főutcáján álló Rákóczi-Aspremont kúria a XVI-XVII. században épült, de legkorábbi hiteles említése egy 1755-ös vagyonösszeírásból származik. Több hiteles feljegyzés alapján okkal feltételezhetjük, hogy II. Rákóczi Ferenc többször járt Mádon és akkor e házban szállt meg. Az épület akkor némiképp másként nézhetett ki, feltehetően földszintes volt. Az 1755-ös első írásos említés és a név kicsit megtévesztő, hiszen II. Rákóczi Ferenc nővére, Rákóczi Julianna és lotaringiai származású férje, Aspremont Ferdinánd Gobert gróf ekkor már nem élt, így – a névadáson túl - nem sok közük lehetett az épülethez. Gyermekeikről keveset jegyzett fel a történetírás, így azt sem, hogy Mádon építkeztek volna.

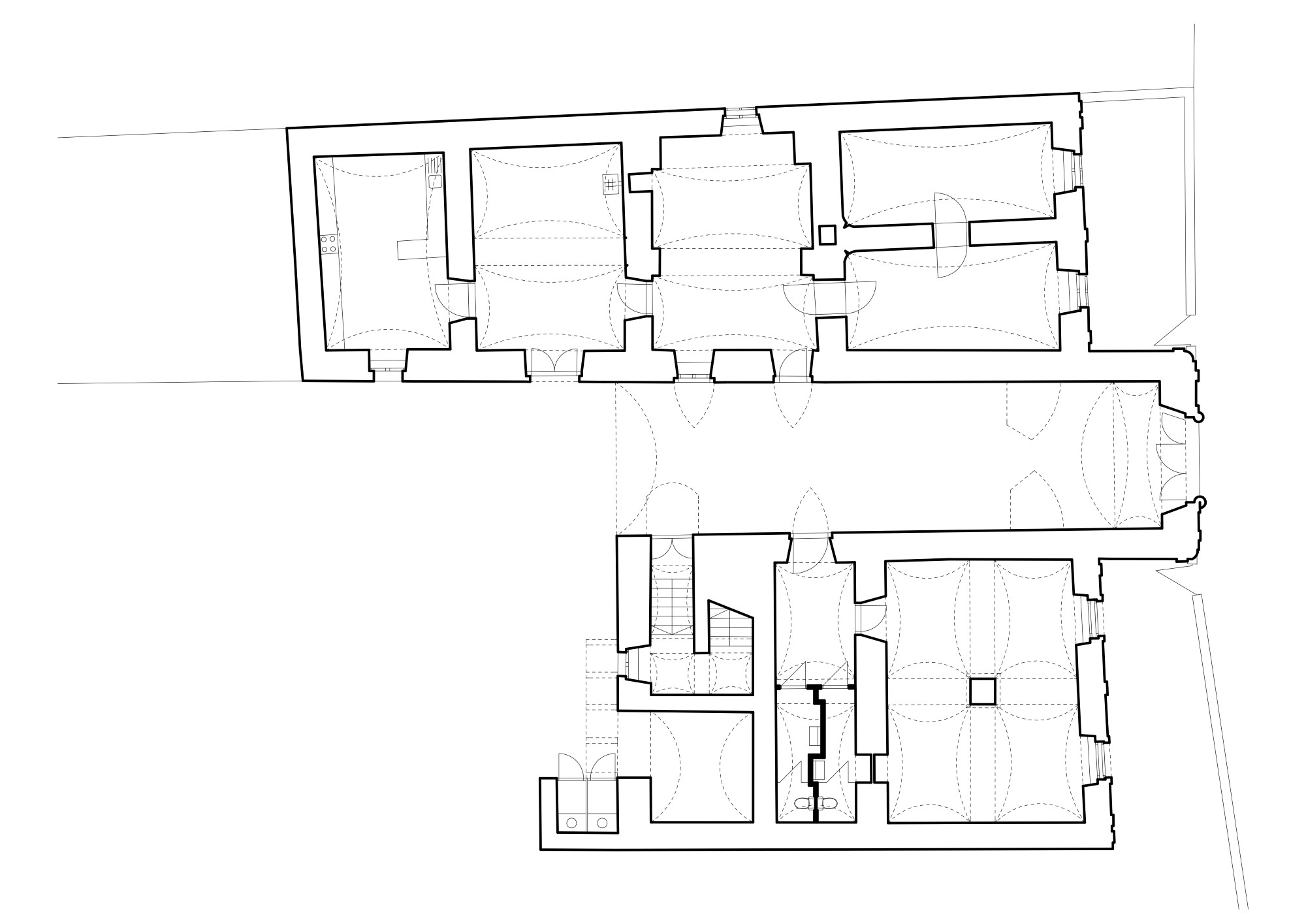
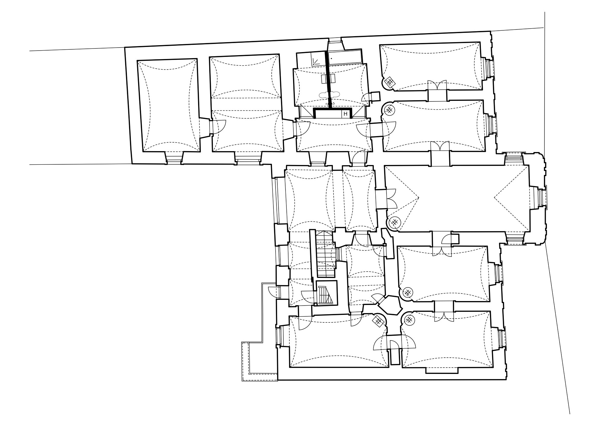
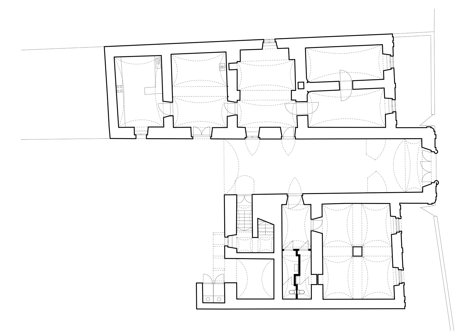
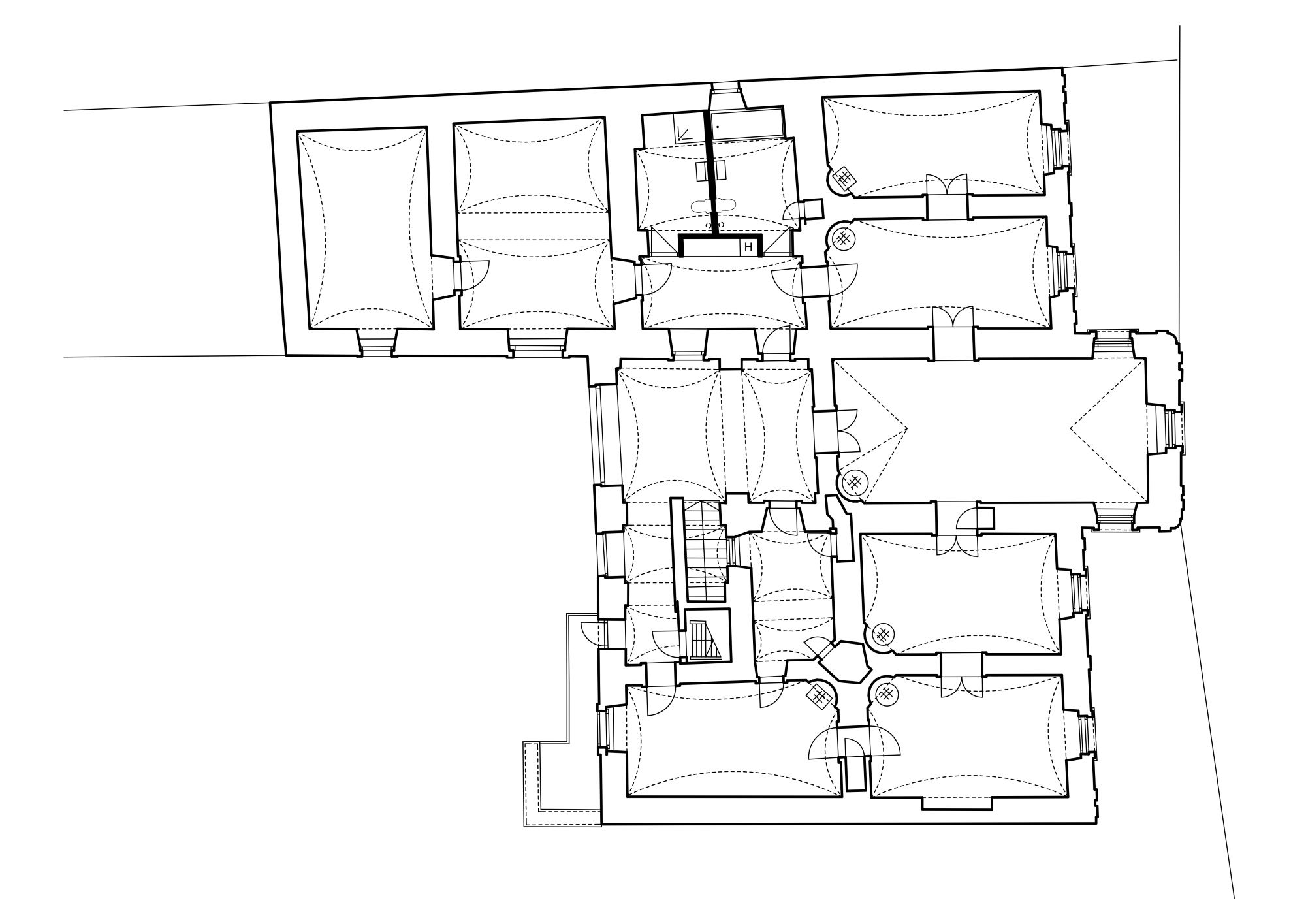
A kúria térszervezése, alaprajzi rendszere alapján feltételezhető, hogy volt egy korai, földszintes periódusa, amikor két különálló részből állt az épület: egy klasszikus, de nagy méretű háromosztatú lakóházból és egy hatosztású, egyterű gazdasági épületből.

Feltehetően 1700 körül alakulhatott ki a mai állapot, amikor a két földszintes épületet emeletráépítéssel kötötték össze, közöttük egy fedett kocsiáthajtóval, amely az utcai homlokzaton középrizalitként kissé előreugrott. Ekkor még az udvar felől faszerkezetű, nyitott feljárója lehetett az emeletnek. Valamikor a XVIII-XIX. század fordulóján belső lépcsőt alakítottak ki, illetve az utcai középrizalitot még jobban kiugratták. A rizaliton található kőkeretes barokk ablakot az udvari, emeleti bejárati ajtó helyére építették be, ami azóta is ott található.

Ezután következett a XX. század eleji jelentős átalakítás, elpusztítva a barokk homlokzatokat, sok környékbeli épülethez hasonlóan.  

002
003
004
005

A kúriaépület felújítása során az alsó szinten kóstoló, iroda és vinotéka készült, a felső szinten pedig három elegáns apartman díszteremmel és hangulatos verandával. Ezek elhelyezéséhez nem volt szükség komoly alaprajzi beavatkozásra, azok szervesen megtalálták helyüket a házban. Az épület nagy értéke, hogy megmaradtak és rekonstruálhatók voltak egykori belső díszítőfestései, méghozzá több időbeli réteg egymás melletti bemutatásával.

Az épülethez hátul egy kézműves borászatnak helyet adó gazdasági épület csatlakozik, amelyhez többágú pince nyílik. A borászat tárolóhelyiségei a szomszédos telken támfalak mögé rejtve épültek, így nem konkurálnak a kúriaépülettel.

006
007
008
010
011
012
013
014

BOR-VIDÉK TOKAJ-HEGYALJA TÁRSASÁG

info@tokajepiteszet.hu

Minden jog fenntartva © 2026

impresszum

Magyar Művészeti Akadémia

A honlap a Magyar Művészeti Akadémia támogatásával valósult meg.