TOKAJ A borvidék építészete

EN
  • Kezdőlap
  • Épületek
  • Települések
  • Táj
  • Írások

J.V. BORÁSZAT

Felújítások Mád
001

Építész: Varga Csaba

Építész munkatárs: Vavrik Ferenc

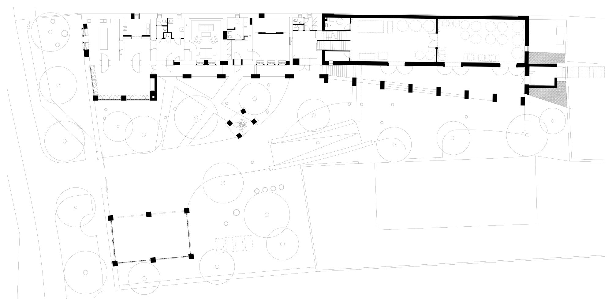
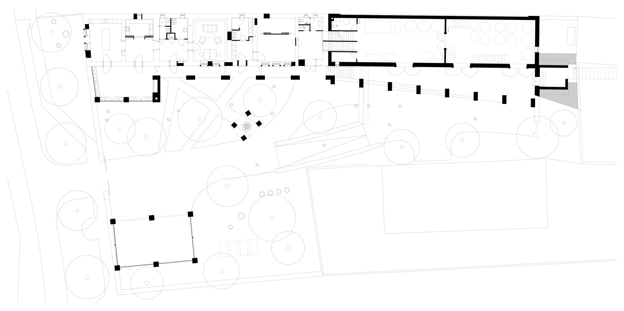
Hegyaljára jellemző módon a borházak többnyire nem kint a szőlőben, hanem a település történelmi szerkezetében helyezkednek el. Ebből fakadóan e borászatok kisvárosi vagy falusi hangulatúak, sajátos polgári miliőjükkel elsősorban nem üzemek, hanem a borral összeforrt település szerves és mindennapi életének részei. Ez a borászat is ilyen, a településmagban helyezkedik el, egy egykori parasztház felújítása és bővítése révén. A tervezés során a régi épület hangulatának átmentése, a történelmi utcaképbe való illeszkedés, a mai kor kihívása, és az új technológiák kiszolgálása egyaránt szerepet játszott. Egy időtlen ház kialakítása volt a cél, amely akár száz éve is ott lehetett volna, ugyanakkor modern is, nem bújtatja régi köntös mögé a ma igényeit és a mai technológiát. Ehhez jó támaszt nyújt a helyi anyagok használata, azon belül is a mádi tufakő erős megjelenése az épületen. E hegyaljai kőzet az itt készített borok karakteréhez is jelentősen hozzájárul, szerepe így többrétegű.

002
003
004
006
005
007
008
009

BOR-VIDÉK TOKAJ-HEGYALJA TÁRSASÁG

info@tokajepiteszet.hu

Minden jog fenntartva © 2026

impresszum

Magyar Művészeti Akadémia

A honlap a Magyar Művészeti Akadémia támogatásával valósult meg.