TOKAJ A borvidék építészete

EN
  • Kezdőlap
  • Épületek
  • Települések
  • Táj
  • Írások

HÉTSZŐLŐ BORÁSZAT

Új épület Tokaj
Tokaj

Építész: Bodonyi Csaba

Építés éve: 1992-1997

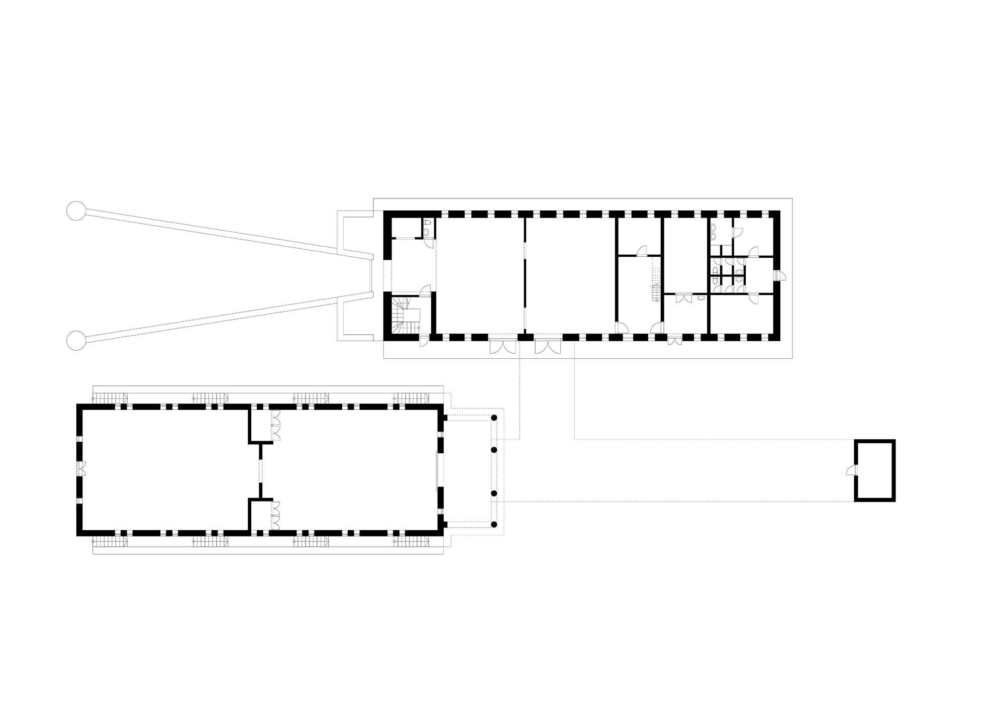
A tokaji Kopasz-hegy déli oldalán, az 1990-ig elhanyagolt, körülbelül ötven hektár volt királyi birtok ma Magyarország és Tokaj-Hegyalja Történelmi Borvidék elismerten legszebb szőlőültetvénye. Itt létesült az ország első reduktív borászata, két ütemben. 1992-ben a feldolgozó, a második ütemben, 1997-ben a palackozó épülete. Az épülettömegek oromzata és elhelyezése a helyi pincék archetípusát követi, s a hegy alatti pincejáratok eruptív külső folytatásaiként jelennek meg. Az épület, s a reduktív borászat szőlőültetvényeken való felépülése eltér a Tokaj-hegyaljai hagyományoktól, mert az oxidatív szőlőfeldolgozás évszázadokon át a mezővárosokban történt. Az épületek tömegét, építészeti karakterét a pinceházak archetípusa, a hagyományos mezőgazdasági épületek egyszerű ereje, és a két szomszédos épület oromzati fafaragványai inspirálták. A két külön időben megvalósított épülettömeg, mint egypetéjű ikrek, csak részletekben különbözik egymástól. Szakírók szerint a Hétszőlő, mint az első reduktív borászati épület, némiképp meghatározta a Tokaj-Hegyalja Világörökségi Borvidék következő húsz évben épülő további kiváló borászati együtteseit.

04 10 18 Inspiralo Kornyezeti Elemek Forrasok
04 10 19 Inspiralo V
 Tom7496
Alaprajz
 Tom7557a
 Tom7499
 Tom7552j

BOR-VIDÉK TOKAJ-HEGYALJA TÁRSASÁG

info@tokajepiteszet.hu

Minden jog fenntartva © 2026

impresszum

Magyar Művészeti Akadémia

A honlap a Magyar Művészeti Akadémia támogatásával valósult meg.